
WLSÎÞÖáÂÝÐýÊäËÍ»ú
Ò»¡¢¸ÅÊö£º
ÎÞÖáÂÝÐýÊäËÍ»úÊÇÎÒ¹«Ë¾¸ù¾Ý½¨²Ä¡¢»¯¹¤¡¢»·±£¡¢µçÁ¦¡¢Ò½Ò©¡¢Ò±½ð¡¢Ê³Æ·µÈÐÐÒµÔÚ²ÉÓã¬LSÐÍ¡¢GXÐÍÂÝÐýÊäËÍ»úÊäËÍÄ¥×ÁÐÔ´ó¡¢Õ³ÐԽϴó£¬Ò×½á¿é£¬ÒײøÈÆÎïÁÏʱÐγÉÎïÁ϶ÂÈû£¬µõÖá³ÐËð»µÊ¹ÂÝÐý»ú²»ÄÜÕý³£¹¤×÷µÄʵ¼ÊÇé¿ö϶øÑз¢ÖÆÔìµÄÒ»ÖÖÐÂÐÍWLSÐÍÂÝÐýÊäËÍ»ú¡£wlsÐÍÎÞÖáÂÝÐýÊäËÍ»úÊÊÓÃÓÚÁ¬Ðø¾ùÔÈÊäËͽÏËÉÉ¢µÄ¡¢ÓÐÕ³ÐԵġ¢ÒײøÈÆÎïÁÏ£¬ÊäËÍÎïÁÏζÈZ¸ß¿É´ï100¡æ£¬Z´óÇã½ÇСÓÚ45¡ã¡£
ºþÖÝÑǺ¼»·±£»úеÉ豸ÓÐÏÞ¹«Ë¾ÎÞÖáÂÝÐýÊäËÍ»úÖ÷Òª¹æ¸ñÓУºWLS200¡¢WLS250¡¢WLS300¡¢WLS350¡¢WLS400¡¢WLS500

µ¥ÎÞÖáÂÝÐýÊäËÍ»ú

Ë«ÎÞÖáÂÝÐýÊäËÍ»ú

¶àÎÞÖáÂÝÐýÊäËÍ»ú
¶þ¡¢ÎÞÖáÂÝÐýÊäËÍ»úµÄÌØµã
ÎÞÖáÂÝÐýÊäËÍ»úÓ봫ͳÓÐÖáÂÝÐýÊäËÍ»úÏà±È£¬ÓÉÓÚ²ÉÓÃÁËÎÞÖÐÐÄÖá¡¢µõÖá³ÐÉè¼Æ£¬ÀûÓþßÓÐÒ»¶¨ÈáÐÔµÄÕûÌå¸ÖÖÆÂÝÐýÍÆËÍÎïÁÏ£¬Òò¶ø¾ßÓÐÒÔÏÂÍ»³öÓŵ㣺
1¡¢ÂÝÐý¾ßÓг¬Ç¿ÄÍÄ¥ÐÔºÍÄÍÓÃÐÔ£¬Ê¹ÓÃÊÙÃü³¤¡£
2¡¢¿¹²øÈÆÐÔÇ¿£ºÎÞÖÐÐÄÖá¸ÉÈÅ£¬¶ÔÓÚÊäËÍ´ø×´¡¢ÒײøÈÆÎïÁÏÓÐÌØÊâµÄÓÅÔ½ÐÔ£¬·ÀÖ¹×èÈûÒýÆðʹʡ£
3¡¢»·±£ÐÔÄܺ㺲ÉÓÃÈ«·â±ÕÊäËͺÍÒ×ÇåÏ´µÄÂÝÐý±íÃæ£¬¿ÉÒÔ±£Ö¤»·¾³ÎÀÉúºÍËùÊäËÍÎïÁϲ»ÊÜÎÛȾ¡¢²»Ð¹Â©¡£
4¡¢Å¤¾à´ó¡¢ÄܺĵͣºÓÉÓÚÂÝÐýÎÞÖá¡¢ÎïÁϲ»Ò×¶ÂÈû£¬Òò¶ø¿ÉÒԽϵÍËÙ¶ÈÔËת£¬Æ½ÎÈ´«¶¯£¬½µµÍÄܺġ£
5¡¢ÊäËÍÁ¿´ó£ºÊäËÍÁ¿ÊÇÏàֱͬ¾¶´«Í³ÓÐÖáÊäËÍ»úµÄ1.5±¶£¬Z´ó´ï40m3/h¡£ÊäË;àÀ볤£¬¿É´ï25Ã×£¬²¢¿ÉÒÔ¸ù¾ÝÓû§ÐèÒª£¬²ÉÓö༶´®ÁªÊ½°²×°£¬³¬³¤¾àÀëÊäËÍÎïÁÏ¡£
6¡¢½á¹¹½ô´Õ£¬²Ù×÷¼ò±ã£¬¾¼ÃÄÍÓã¬Î¬»¤Á¿¼«ÉÙ£¬Î¬»¤·ÑÓõ͡£
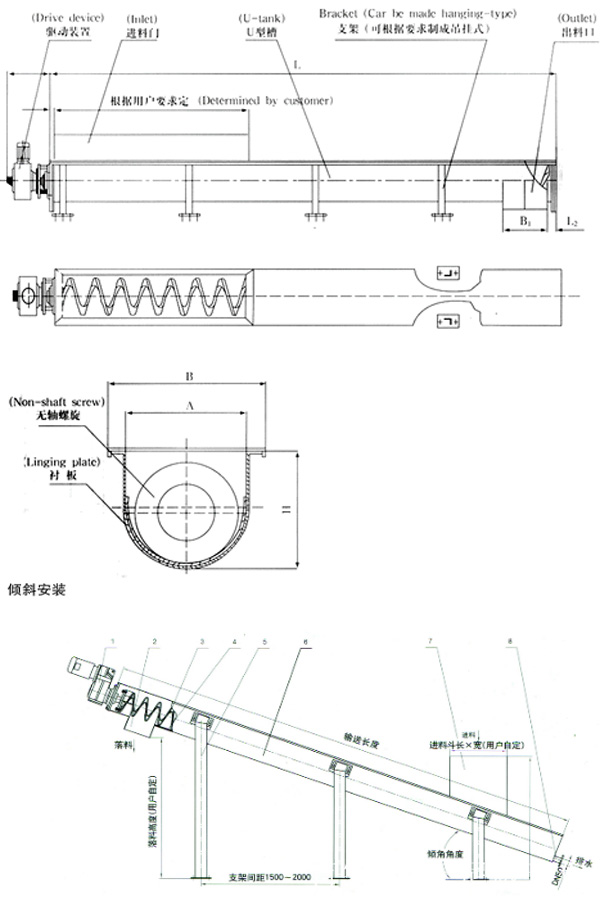
Èý¡¢ÎÞÖáÂÝÐýÊäËÍ»úµÄ½á¹¹
WLSÎÞÖáÂÝÐýÊäËÍ»ú²úÆ·Ö÷ÒªÓÉÇý¶¯×°Öá¢Í·²¿×°Åä¡¢»ú¿Ç¡¢ÎÞÖáÂÝÐýÌå¡¢²ÛÌå³Ä°å¡¢½øÁϿڡ¢³öÁϿڡ¢»ú¸Ç£¨ÐèҪʱ£©¡¢µ××ùµÈ×é³É¡£
1¡¢Çý¶¯×°Ö㺲ÉÓðÚÏßÕëÂÖÂÖ¼õËÙ»ú»òÖáװʽӲ³ÝÃæ³ÝÂÖ¼õËÙ»ú£¬Éè¼ÆÊ±Ó¦¾¡¿ÉÄܽ«Çý¶¯×°ÖÃÉèÔÚ³öÁϿڶˣ¬Ê¹ÂÝÐýÌåÔÚÔËתʱ´¦ÔÚÊÜÀ״̬¡£
2¡¢Í·²¿×°ÅäÓÐÍÆÁ¦Öá³Ð£¬¿É³ÐÊÜÊäËÍÎïÁÏʱ²úÉúµÄÖáÏòÁ¦¡£
3¡¢»ú¿Ç£º»ú¿ÇΪUÐÍ»òO ÐÍ£¬Éϲ¿¼Ó·ÀÓêÐÍ»ú¸Ç£¬²ÄÖÊÓв»Ðâ¸Ö»ò̼¸Ö»ò²£Á§¸Ö¡£
4¡¢ÎÞÖáÂÝÐýÌ壺²ÄÖÊΪ²»Ðâ¸Ö»ò̼¸Ö¡£
5¡¢²ÛÌå³Ä°å£º²ÄÖÊΪÄÍÄ¥µÄËÜÁϰå»òÏ𽺰å»òÖýʯ°åµÈ¡£
6¡¢½ø¡¢³öÁϿڣºÓз½ÐκÍÔ²ÐÎÁ½ÖÖ£¬Ò»°ã½ø¡¢³öÁÏ¿ÚÐÎʽÓÉÓû§¾ö¶¨¡£

ËÄ¡¢ÎÞÖáÂÝÐýÊäËÍ»úµÄÖ÷Òª¼¼Êõ²ÎÊý
